A Capolago, suggestiva località affacciata sulle rive del Ceresio, dove l’acqua e le montagne disegnano ogni giorno un orizzonte diverso e l’atmosfera invita a ritmi più autentici, proponiamo alla vendita un moderno appartamento 2.5 locali.
L’immobile si troverà al piano terra di una residenza in costruzione, pensata per chi desidera un’abitazione dal gusto contemporaneo e con spazi esterni privati.
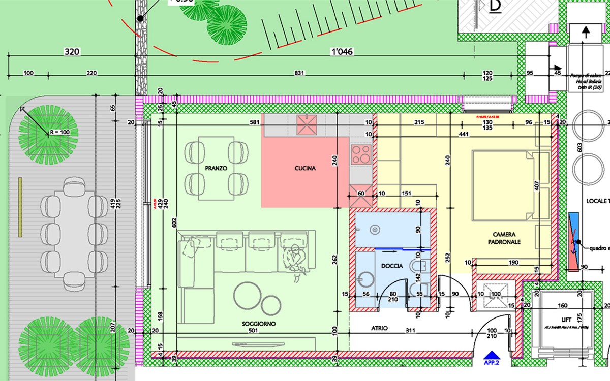
L’appartamento, grazie alle grandissime vetrate della zona giorno, godrà di una piacevole luce naturale che accompagna gli ambienti e ne esalta le linee, creando una sensazione di apertura e continuità con l’esterno.
All’esterno si aprirà una terrazza di 23.91 m² che dialoga con un giardino privato di 150 m², uno spazio raro e prezioso, con vista lago, in grado di offrire un quotidiano fatto di momenti all’aria aperta e piccole pause di bellezza.
La vista lago si lascierà apprezzare con naturalezza già dagli affacci principali, trovando nella terrazza e nel giardino il suo punto ideale per essere vissuta con calma, in ogni stagione.
La zona living è pensata in chiave attuale, con una grande cucina open space sul soggiorno: un ambiente ampio, fluido e conviviale, valorizzato dalle vetrate che invitano lo sguardo verso l’esterno.
La proposta si distingue per la certificazione Minergie e per le finiture personalizzabili, elementi in grado di unire attenzione all’efficienza e libertà di interpretare gli spazi secondo il proprio stile.
L’immobile, in costruzione nel periodo 2026-27, verrà consegnato nella primavera del 2027.
Il riscaldamento sarà provvisto da un efficiente sistema autonomo a termopompa con diffusione a serpentine, aiutato da serramenti in alluminio e impenetrabili vetri tripli. La pavimentazione, ancora personalizzabile, sarà in parquet per la superficie abitabile, con piastrelle nei bagni.
L’appartamento, sito al piano terra di due, sarà collegato ai piani tramite un comodo ascensore.
Da notare la possibilità di utilizzo sia come abitazione primaria sia come residenza secondaria, un dettaglio che rende l’offerta particolarmente interessante sia per una elezione ad abitazione principale sia per affitti a breve o a lungo termine per una interessante opportunità di reddito.
Per il bucato sarà prevista una pratica predisposizione per lavatrice e asciugatrice direttamente in appartamento, inserita in un armadio del corridoio, in grado di garantire ordine e comodità nella quotidianità.
L’appartamento si comporrà di atrio d'ingresso, corridoio, soggiorno con cucina open space e accesso alla terrazza e al giardino, di una camera matrimoniale e di un bagno con doccia.
Due posteggi esterni comodamente inclusi nel prezzo di vendita e una comoda cantina completano questa interessante offerta.
UN BELLISSIMO APPARTAMENTO DI NUOVA COSTRZIONE!!