Apri Menu

Ricerca:

CASE

Giubiasco


Grandissima casa unifamiliare o bifamiliare 9 locali con grande giardino, due terrazze, grottino e area benessere con sauna

Grandissima casa unifamiliare o bifamiliare 9 locali con grande giardino, due terrazze, grottino e area benessere con sauna - Giubiasco

Contattaci subito!

Contattaci subito!

Categoria: Case
Distretto: Bellinzona
Località: Giubiasco
Disponibilità: Disponibile
Locali: 9
Camere: 5
Studi: 1
Cucine: 2
Bagni: 3
Superficie Abitabile: 250 mq
Superficie Terreno: 531 mq
Livelli: 3
Anno di Costruzione: 1972
Anno di Ristrutturazione: 2005
Terrazze: 2
Parcheggi Interni: 1
Box Auto: 1
Parcheggi Esterni: 3
Prezzo CHF: 1430000

Descrizione:

Nel cuore di Giubiasco, dolce località immersa tra le colline del Sopra Ceneri, dove il ritmo sereno della vita ticinese si intreccia con la bellezza discreta dei paesaggi, proponiamo alla vendita una bellissima casa 9 locali ad uso unifamiliare o bifamiliare.

La proprietà si trova in posizione privilegiata e riservata, in una zona ben servita con tutti i principali servizi nelle immediate vicinanze, comoda per la vita di ogni giorno.

L'abitazione gode di ampi spazi luminosi, in grado di valorizzare la quotidianità con ambienti ariosi e accoglienti grazie anche alle grandi vetrate del piano superiore.

La casa dispone di un grande giardino con area verde e spazio orto, una zona perfetta per coltivare i propri hobby preferiti crescendo i migliori ortaggi bio per tutta la famiglia. Qui è anche presente un robusto tavolo in pietra per organizzare delle meravigliose grigliate e uno spazio per installare una piscina mobile, creando tutti i presupposti per uno spazio dove godere al meglio delle stagioni più belle dell'anno.

Sia dal piano centrale che da quello superiore è possibile accedere a una bella terrazza coperta, perfetta per prendere una boccata d'aria fresca ogniqualvolta lo si desidera ammirando dal piano superiore una piacevole vista aperta.

La zona living al pianterreno, concepita in open space, accoglie con un camino termoventilato in grado di donare atmosfera e calore durante le giornate più fredde dell'anno. L'accesso diretto all'area esterna soleggiata è in grado di creare un immediato contatto con la natura.

Al primo piano è degno di nota l'elegante salotto con ampie vetrate panoramiche in grado di regalare una dimensione luminosa e contemporanea per una zona di sereno relax.

Il comfort è arricchito da un bagno con doccia idromassaggio al piano terreno e da un secondo bagno con vasca idromassaggio angolare al piano superiore.

Al piano seminterrato è possibile beneficiare di una vera e propria spa privata, una piccola oasi con sauna e doccia dove abbandonare definitivamente lo stress quotidiano dedicandosi al proprio benessere e pace ma anche di un locale hobby, perfetto anche per installare la propria palestra privata per tenersi in forma ogni giorno senza pensieri o scomodi spostamenti.

La soluzione immobiliare dispone anche di un piccolo edificio completamente separato con cucina completa di elettrodomestici, camino a legna e piccolo servizio ospiti, perfetto per pranzi ed eventi, consentendo di accogliere gli ospiti e organizzare allegri ritrovi anche nei rigidi mesi invernali.

Un impianto fotovoltaico con batteria d'accumulo da ben 48 pannelli per complessivi 13,5 kW rendono la soluzione praticamente indipendente dal punto di vista energetico con un risparmio economico davvero degno di nota e consentendo addirittura di rivendere l'energia prodotta.

Unendo questo al cappotto e ai buoni serramenti antisfondamento, si potrà disporre di un'abitazione dai costi di gestione davvero modici per uno stile di vita green e ecosostenibile.

L'immobile, edificato nel 1972, ha beneficiato di importanti interventi di ampliamento e ristrutturazione. Tra di essi il più importante è sicuramente avvenuto tra il 2004 e il 2005 dove è stato creato il piano mansardato. Nel 2005 è stata installata l'attuale caldaia mentre nel 2014 sono stati aggiunto l'impianto fotovoltaico, sono stati posati i nuovi serramenti antisfondamento ed è stato realizzato l'isolante cappotto esterno.

Il riscaldamento è provvisto da un efficiente sistema autonomo a gasolio con diffusione a caloriferi, aiutato da serramenti in pvc e isolante vetrocamera antisfondamento. La pavimentazione è in parquet nelle camere e in piastrelle nel resto della superficie.

Da notare come la separazione naturale su due piani con diverse camere ciascuno rende la soluzione immobiliare molto poliedrica e particolarmente appetibile sia in vista di un uso come bifamiliare per una grande famiglia in espansione che vuole vivere sotto lo stesso tetto ma con ampi spazi per ognuna ma anche per un solo nucleo che vuole grandi spazi abitativi con un grande giardino, un meraviglioso grottino, area spa e tutti i comfort per coronare il sogno di una vita perfetta.

Il piano superiore è già stato realizzato con in vista la possibilità di creare una soluzione immobiliare indipendente ed è dunque già predisposto per un'eventuale separazione e accesso indipendente.

L'immobile si compone al pianterreno di accesso da un accogliente porticato, ampio disimpegno, della grande zona living open space con camino termoventilato e cucina open space, di ben tre camere e di un bagno finestrato con doccia idromassaggio.

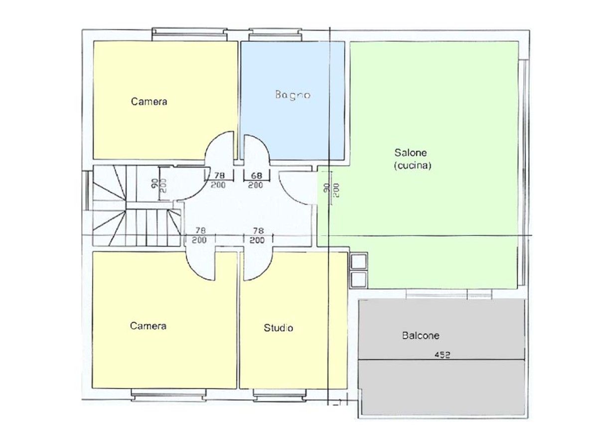
Il piano superiore, la parte più recente e moderna dell'immobile, ospita due ulteriori camere matrimoniali, una camera singola o locale studio e uno spazioso bagno finestrato con vasca idromassaggio angolare.

Il seminterrato ospita la cantina, lo spazio attrezzi o zona hobby, la zona benessere con sauna e doccia.

Infine, separato dall'abitazione principale, troviamo anche il piccolo edificio con grottino separato, cucina e bagno wc.

Un box auto con portellone elettrico automatizzato e due posti auto esterni completano questa imperdibile offerta.

UN'OASI DI PACE TRA ELEGANZA, SPAZIO E BENESSERE!!

Numero Oggetto: s1596
Casa Lugano · AI Studio
Token totali 0
Durata 00:00
Descrizione completa In attesa

                        
Newsletter In attesa

                        
Social media In attesa

                        
Scheda tecnica In attesa

                        
Titoli & sottotitoli In attesa