Apri Menu

Ricerca:

REDDITO

Coldrerio


Interessante stabile con 3 appartamenti di 3 locali, versatile anche ad uso ufficio in comoda corte a reddito

Interessante stabile con 3 appartamenti di 3 locali, versatile anche ad uso ufficio in comoda corte a reddito - Coldrerio

Contattaci subito!

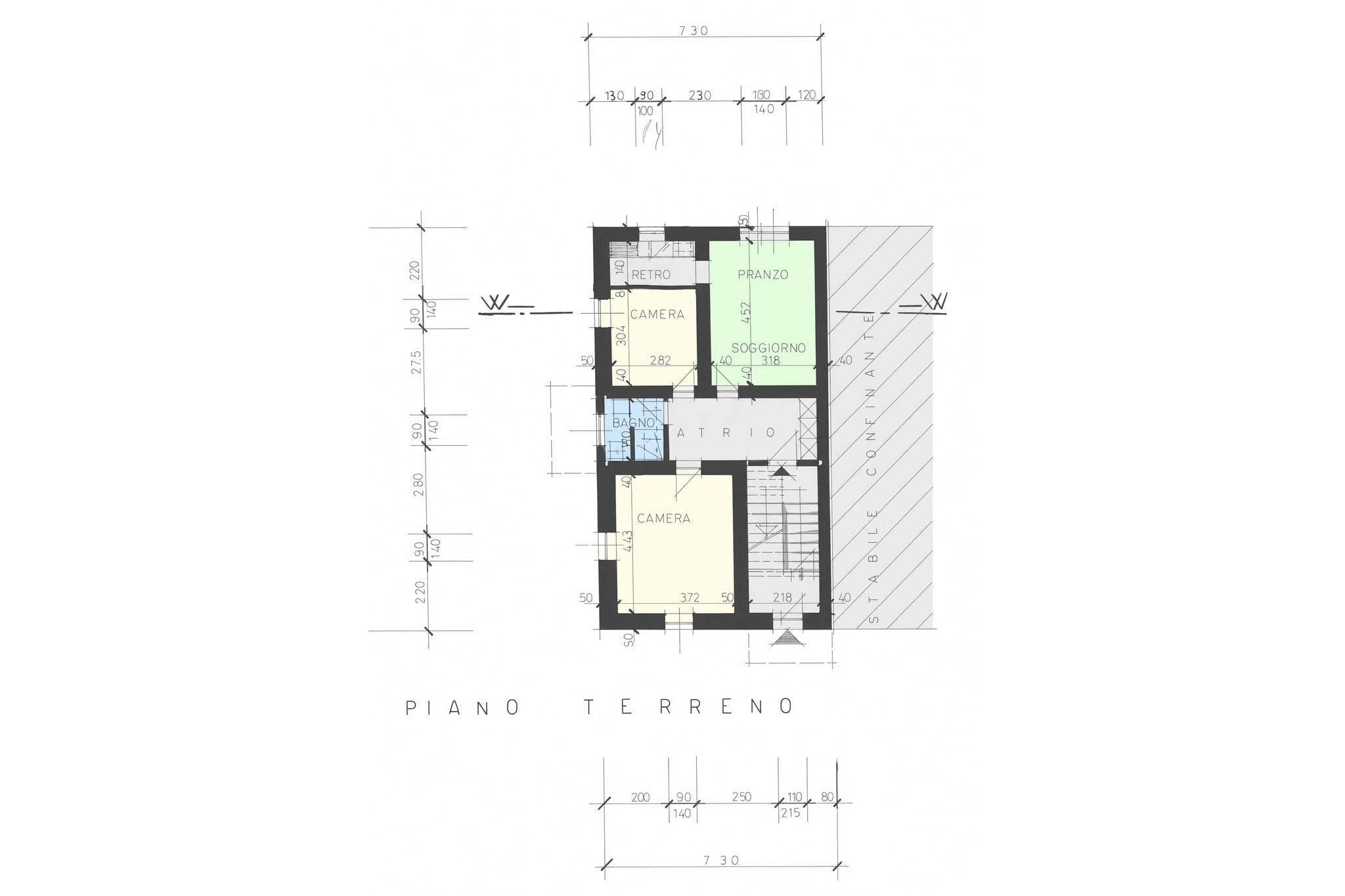
Planimetria - PIANI PIANTERRENO

PIANI PIANTERRENO

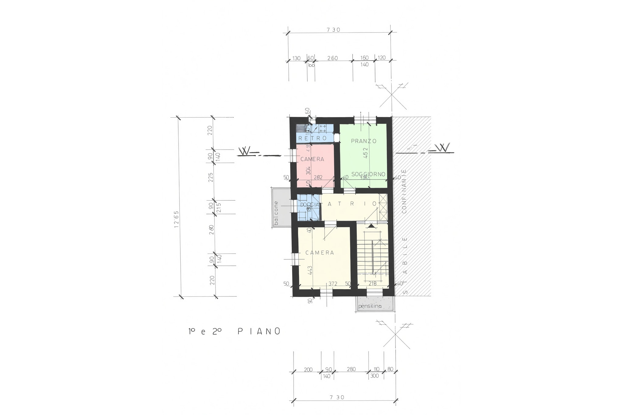
Planimetria - PIANI PRIMO PIANO

PIANI PRIMO PIANO

Contattaci subito!

Categoria: Reddito
Distretto: Mendrisio
Località: Coldrerio
Disponibilità: Disponibile
Bagni: 3
Superficie Abitabile: 210 mq
Totale Piani: 3
Anno di Ristrutturazione: 1990
Prezzo CHF: 630000

Descrizione:

A Coldrerio, piacevole comune del Mendrisiotto apprezzato per il suo carattere raccolto, per il ritmo sereno della vita quotidiana e per la sua posizione in grado di coniugare praticità e qualità dell’abitare, proponiamo alla vendita un’interessante casa con 3 appartamenti.

L’immobile è inserito in una piccola corte ben tenuta, all’interno di un complesso di tre case di corte di dimensioni contenute, in una zona comoda per tutti i servizi. A disposizione vi è inoltre un piccolo spazio verde comune, in grado di rendere ancora più gradevole il contesto.

Uno degli aspetti più interessanti della proprietà è la notevole versatilità d’uso dei suoi spazi, poiché tutti gli appartamenti possono essere utilizzati sia come abitazioni sia come uffici, caratteristica in grado di ampliare sensibilmente le possibilità di impiego e di valorizzazione dello stabile.

L’immobile ha beneficiato di interventi di miglioria negli anni 90 e, tra il 2025 e il 2026 che hanno incluso un rifacimento totale dei bagni dell’appartamento al pianterreno e di quello al secondo piano, oltre a una leggera ristrutturazione che ha interessato i medesimi livelli.

Il riscaldamento è provvisto da un efficiente sistema autonomo a pellet, integrato da radiatori elettrici a basso consumo, aiutato da ottimi serramenti in legno e isolante vetrocamera. La pavimentazione alterna parquet, piastrelle, laminato e resina nei bagni.

Dal punto di vista dell’investimento la proposta si rivela particolarmente interessante grazie alla presenza di tre appartamenti all’interno di un unico stabile, una configurazione in grado di risultare molto appetibile per generare consistemente un ottimo flusso di reddito.

L’immobile si compone al pianterreno di un appartamento di 3 locali con cucina e zona pranzo/soggiorno, una camera matrimoniale, una stanza utilizzabile come soggiorno più grande oppure come seconda camera da letto, un bagno finestrato e ingresso con armadiatura a muro; il primo piano ospita un secondo appartamento di 3 locali dalla medesima composizione e il secondo piano accoglie infine un terzo appartamento di 3 locali anch’esso con la stessa distribuzione interna.

Diverse possibilità di parcheggio nella corte completano questa interessante offerta.

UN'OTTIMA OPPORTUNITÀ A REDDITO IN CONTESTO COMODO E VERSATILE!!

Numero Oggetto: s1655
Casa Lugano · AI Studio
Token totali 0
Durata 00:00
Descrizione completa In attesa

                        
Newsletter In attesa

                        
Social media In attesa

                        
Scheda tecnica In attesa

                        
Titoli & sottotitoli In attesa