Apri Menu

Ricerca:

REDDITO

Morbio Inferiore


Affascinante casa di nucleo 1’033 m³ completamente da ristrutturare con licenza edilizia già approvata

Affascinante casa di nucleo 1’033 m³ completamente da ristrutturare con licenza edilizia già approvata - Morbio Inferiore

Contattaci subito!

Planimetria - PIANO TERRA

PIANO TERRA

Planimetria - PIANO PRIMO

PIANO PRIMO

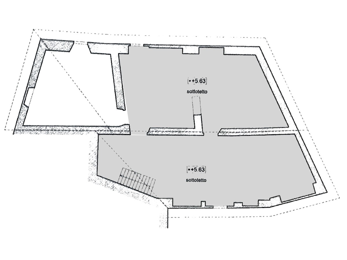
Planimetria - PIANO SECONDO

PIANO SECONDO

Contattaci subito!

Categoria: Reddito
Distretto: Mendrisio
Località: Morbio Inferiore
Disponibilità: Disponibile
Appartamenti: 4
Livelli: 3
Cubatura: 1033 m³
Parcheggi Esterni: 1
Prezzo CHF: 450000

Descrizione:

A Morbio Inferiore, borgo dal carattere autentico nel Mendrisiotto, dove le pietre raccontano storie antiche e il ritmo quotidiano conserva un senso di misura e di semplicità, proponiamo alla vendita un’affascinante casa di nucleo.

La proprietà si trova in posizione comoda per raggiungere tutti i servizi e beneficia di una piacevole esposizione soleggiata, elemento che la rende particolarmente interessante per chi desidera vivere o investire senza rinunciare alla praticità.

La casa, grazie alla sua collocazione soleggiata, gode di una buona luce naturale, capace di accompagnare gli ambienti lungo il corso della giornata e di valorizzarne l’atmosfera.

Il vero punto di forza risiede nel suo enorme potenziale: l’immobile è completamente da ristrutturare e si sviluppa su tre livelli, con una licenza edilizia già approvata che prevede la realizzazione di 4 unità abitative, lasciando spazio alla possibilità di modificare il progetto e personalizzarlo secondo le proprie esigenze.

Per chi desidera approfondire, è disponibile il progetto alla visione, offrendo una base concreta da cui partire per immaginare ogni scelta con chiarezza.

L’immobile, edificato nel 900, richiede una ristrutturazione completa. La sua cubatura di 1’033 m³ offre margini progettuali di particolare interesse.

Da notare come il progetto risulti ben supportato a livello bancario con possibilità di accesso a credito di costruzione, un aspetto di grande rilievo in grado di rendere l’operazione più solida e concreta dal punto di vista finanziario.

Un posteggio esterno completa questa interessante offerta.

UN'OCCASIONE DAL POTENZIALE UNICO CON LICENZA GIÀ APPROVATA!!

Numero Oggetto: s1630
Casa Lugano · AI Studio
Token totali 0
Durata 00:00
Descrizione completa In attesa

                        
Newsletter In attesa

                        
Social media In attesa

                        
Scheda tecnica In attesa

                        
Titoli & sottotitoli In attesa