Apri Menu

Ricerca:

REDDITO

Morcote


Redditizia palazzina elegantemente rinnovata con quattro appartamenti autorizzati per affitti brevi

Redditizia palazzina elegantemente rinnovata con quattro appartamenti autorizzati per affitti brevi - Morcote

Contattaci subito!

Contattaci subito!

Categoria: Reddito
Distretto: Lugano
Località: Morcote
Disponibilità: Disponibile
Bagni: 2
Appartamenti: 4
Livelli: 1
Anno di Costruzione: 1800
Anno di Ristrutturazione: 2020
Parcheggi Interni: 2
Parcheggi Esterni: 3
Prezzo CHF: 1550000

Descrizione:

A Morcote, affascinante località affacciata sul Ceresio rinomata per il suo carattere senza tempo e la sua atmosfera raccolta, proponiamo alla vendita una bellissima palazzina di reddito con 4 appartamenti.

L’edificio, risalente al 1800 e in buono stato, è stato oggetto di interventi nel 2020, anno in cui la proprietà ha beneficiato di un rinnovamento che ha saputo non solo riportarlo agli standard attuali ma offrire spazi abitativi particolarmente allettanti anche a scopo ricettivo. Lo stato generale risulta curato e confortevole e perfettamente adatto a una gestione locativa ordinata.

Di recente è stata installata una climatizzazione con ventilazione forzata, un plus moderno in grado di migliorare il comfort degli ambienti e la qualità dell’aria, a beneficio sia della gestione sia dell’esperienza degli ospiti.

Il riscaldamento è provvisto da un efficiente sistema autonomo a termopompa con diffusione a serpentine, aiutato da ottimi serramenti in pvc e isolante vetrocamera.

Questa piccola palazzina, già autorizzata per affitti brevi e completamente arredata, rappresenta un investimento pronto all’uso. Gli appartamenti, curati e funzionali, permettono di iniziare da subito a generare reddito grazie a un’accoglienza semplice e immediata, senza necessità di ulteriori interventi o attese. L’autorizzazione per affitti brevi e la presenza dell’arredo rendono in effetti questa proposta particolarmente interessante per chi cerca una soluzione a reddito pronta a operare, una vera rarità in un contesto di pregio come Morcote.

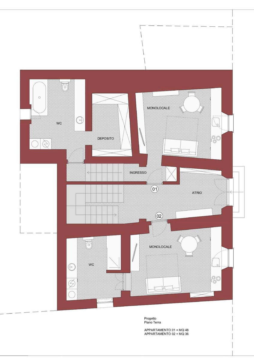
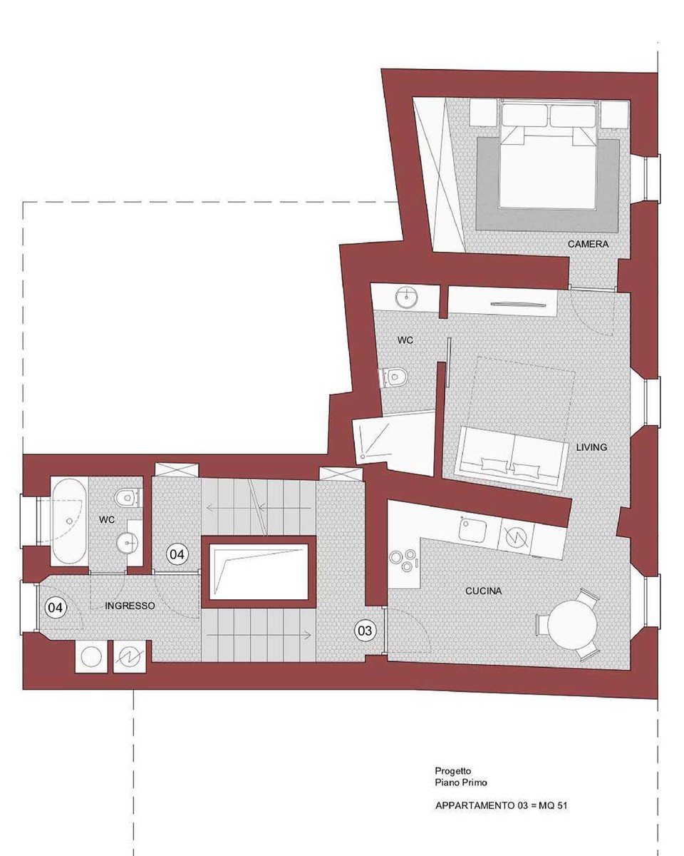
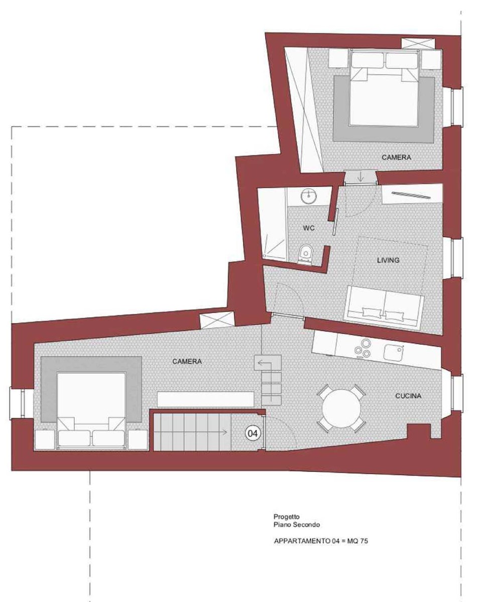
L’immobile si compone di quattro appartamenti: due unità da 1,5 locali, una da 2,5 locali e una da 3,5 locali.

Cinque posteggi esterni di cui due coperti, il tutto comodamente incluso nel prezzo di vendita, completano questa interessante offerta.

UN'OCCASIONE DAVVERO REDDITIZIA!!

Numero Oggetto: s1594
Casa Lugano · AI Studio
Token totali 0
Durata 00:00
Descrizione completa In attesa

                        
Newsletter In attesa

                        
Social media In attesa

                        
Scheda tecnica In attesa

                        
Titoli & sottotitoli In attesa